HIGH LINE | LIFT & SLIDE
HIGHLY THERMALLY INSULATED LIFT & SLIDING CONSTRUCTION
QS HL SD

With large glass surfaces and slender elevations, QUALISYS High Line Sliding System opens up broad design freedom for planners and architects. A practical selection of a different track schemes - including a “monorail” version with fixed window area - offers creative scope for the realization of architectural concepts. Exceptional ease of use comes thanks to an entirely new generation of fittings that permit higher sash weights.
In addition, thanks to a gear damper, these fittings not only reduce the force required to open the door but also lower the sash softly during closing.
Highlights:
- Heavy-duty sliding construction; sash height max. 3,000 mm (9.84’) by width 3,235 mm (10.61’).
- Highly thermally insulated system with large-format pane dimensions.
- One or two tracked options.
- Optimum thermal insulation with triple glazing up to a sash weight of 400 kg (881 lbs).
- Optional electrical drive possible.
- Creative freedom with optional minimal frame line for more sophisticated, modern and aesthetic architecture.
- Flush threshold application possible.
- Reinforced labyrinth-profiles depending on the static value
In addition, thanks to a gear damper, these fittings not only reduce the force required to open the door but also lower the sash softly during closing.
Highlights:
- Heavy-duty sliding construction; sash height max. 3,000 mm (9.84’) by width 3,235 mm (10.61’).
- Highly thermally insulated system with large-format pane dimensions.
- One or two tracked options.
- Optimum thermal insulation with triple glazing up to a sash weight of 400 kg (881 lbs).
- Optional electrical drive possible.
- Creative freedom with optional minimal frame line for more sophisticated, modern and aesthetic architecture.
- Flush threshold application possible.
- Reinforced labyrinth-profiles depending on the static value
QS HL ML

SUPPLEMENTARY UNITS
QUALISYS High Line sliding door series offers narrow labyrinth profile as an alternative to users who prefer less frames and more transparency.
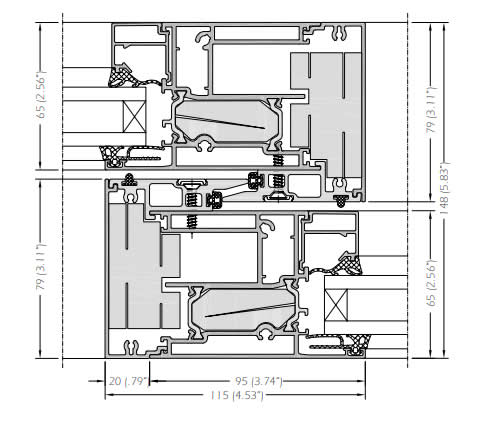
High Line Sliding Door Labyrinth Cross Section
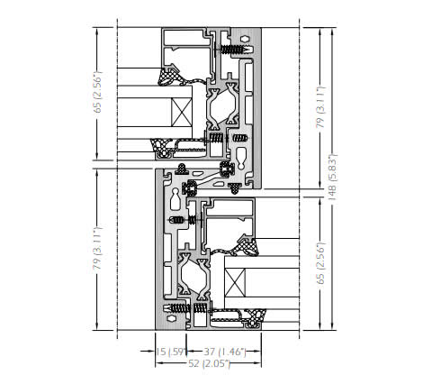
High Line Minimal Line Labyrinth Cross Section

